
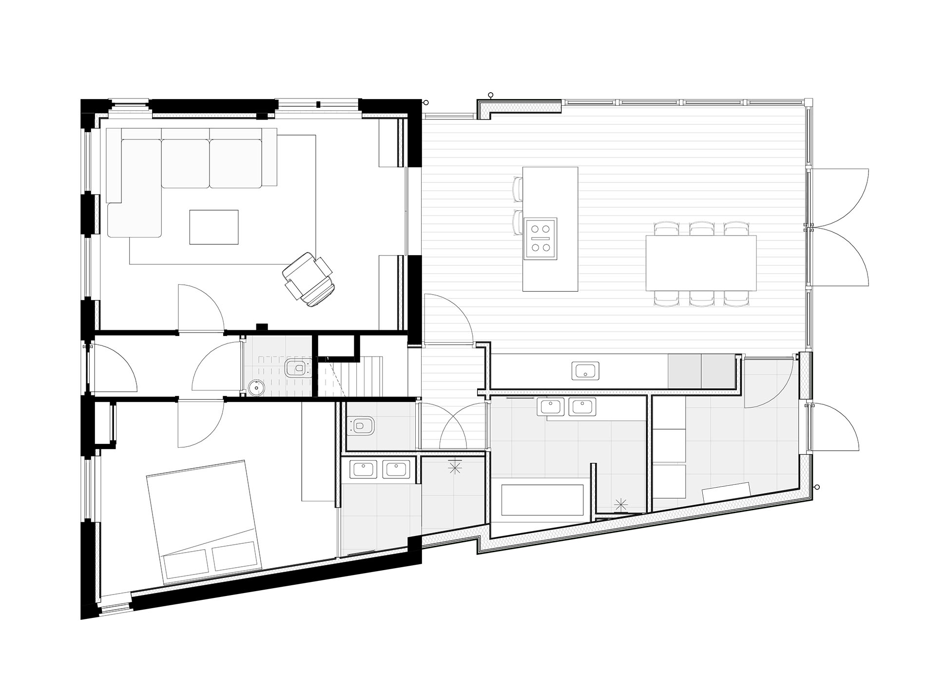
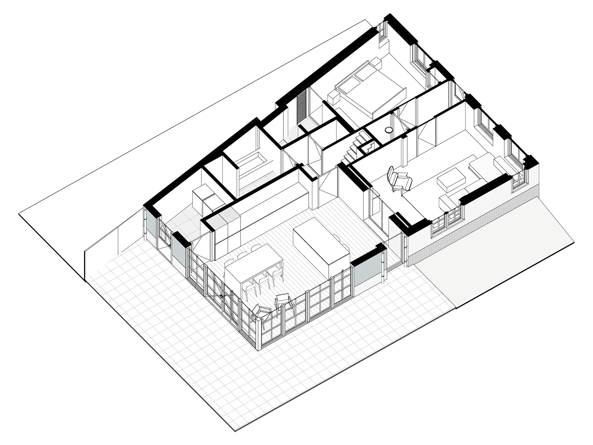
Aan het groene Nieuwendammer Molenpad in Amsterdam realiseren wij de duurzame transformatie van een idyllisch gelegen dijkwoning. De woning, gelegen in een historisch lint, wordt zorgvuldig vernieuwd en uitgebreid met respect voor de oorspronkelijke architectuur en de landelijke omgeving. Het ontwerp richt zich op maximale ruimtelijkheid en daglicht. De bestaande woning krijgt een nieuwe indeling waarbij de woon- en eetruimte logisch samenkomen rondom de tuin. Door strategische openingen, een nieuwe kapisolatie en subtiele uitbreiding ontstaat een lichte, warme leefomgeving met zichtlijnen naar het groen rondom het huis. De historische uitstraling van de woning blijft behouden. Houten gevelbekleding, natuurlijke materialen en zorgvuldig gedetailleerde kozijnen sluiten aan bij de architectuur van het dijklint. De bestaande structuren worden waar nodig versterkt en aangevuld met maatwerkdetails, waaronder een subtiele kaprenovatie en vernieuwde dakranden






Comfort en energiezuinigheid vormen de kern van de ingreep. De woning krijgt hoge isolatiewaarden voor gevels, vloer en kap, gecombineerd met vloerverwarming op de begane grond, slimme ventilatie en duurzame installaties. Met een vernieuwd dak en een efficiënte indeling ontstaat een gezonde, comfortabele en energiezuinige woning die klaar is voor de toekomst – zonder het karakter te verliezen.
De tuin en het omliggende dijklandschap zijn onlosmakelijk onderdeel van het ontwerp. Grote openingen verbinden binnen met buiten en creëren ruimte voor groen, schaduw en ontspanning. Zo nestelt de woning zich opnieuw in zijn natuurlijke context, als een plek waar binnen en buiten op een vanzelfsprekende manier in balans zijn.

Project
Nieuwendammer Molenpad
Opdrachtgever |
Particulier
Locatie
Amsterdam
Uitvoering
2026
Opgeleverd
–
Architect
BUST
Aannemer
–
Interieur architect
–
Adviseur constructie
Ingenieursbureau Wiersema
Fotograaf
–